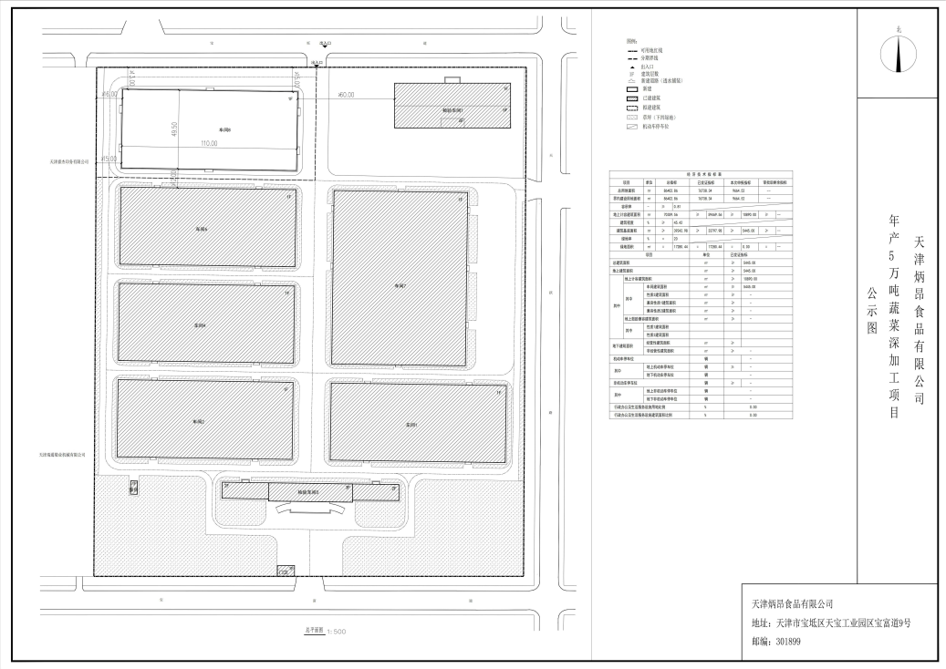
依据《中华人民共和国城乡规划法》和住房城乡建设部《关于城乡规划公开公示的规定》等相关规定要求,现将天津炳昂食品有限公司申请车间8项目建设工程设计方案总平面图公示,公示时间为7个工作日( 从2026年1月19日至2026年1月27日)。
建议意见反馈方式:可通过电子邮箱或信件反馈
电子邮箱gzjbdfjjgk@tj.gov.cn
邮寄地址:天津市宝坻区潮阳大道北侧(十大彩票游戏平台宝坻分局)
邮政编码:301800
征求意见时间为7个工作日,逾期视为无意见。

国务院相关部委
政府机关
局属单位网站
主办单位:十大彩票游戏平台 地址:天津市和平区曲阜道84号 邮编:300042
网站标识码:1200000077 备案编号:津ICP备19001981号
津公网安备12010102000518号
版权所有:十大彩票游戏平台