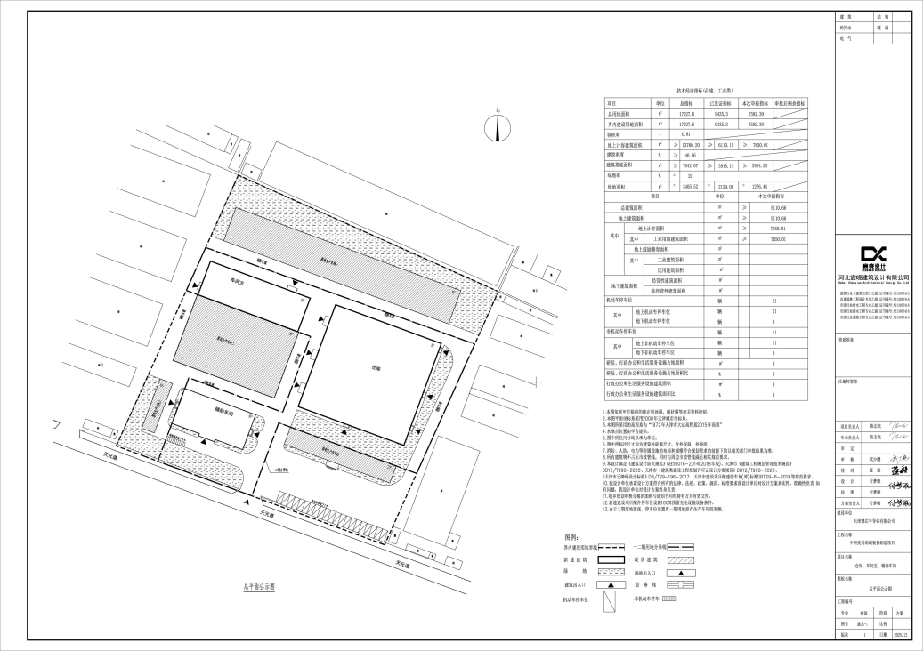
依据《十大彩票游戏平台》和住房城乡建设部《十大彩票游戏平台》等相关规定要求,现将天津慧芯半导体有限公司申请仓库、车间五、辅助车间项目建设工程设计方案总平面图公示,公示时间为7个工作日( 从2026年1月4日至2026年1月12日)。
建议意见反馈方式:可通过电子邮箱或信件反馈
电子邮箱gzjbdfjjgk@lotterytop10.com
邮寄地址:天津市宝坻区潮阳大道北侧(十大彩票游戏平台宝坻分局)
邮政编码:301800
征求意见时间为7个工作日,逾期视为无意见。

相关新闻:
依据《十大彩票游戏平台》和住房城乡建设部《十大彩票游戏平台》等相关规定要求,现将天津慧芯半导体有限公司申请仓库、车间五、辅助车间项目建设工程设计方案总平面图公示,公示时间为7个工作日( 从2026年1月4日至2026年1月12日)。
建议意见反馈方式:可通过电子邮箱或信件反馈
电子邮箱gzjbdfjjgk@lotterytop10.com
邮寄地址:天津市宝坻区潮阳大道北侧(十大彩票游戏平台宝坻分局)
邮政编码:301800
征求意见时间为7个工作日,逾期视为无意见。

相关新闻:
国务院相关部委
政府机关
局属单位网站
关于本站| 版权信息| 网站地图| 使用帮助| 十大彩票游戏平台
主办单位:十大彩票游戏平台 地址:天津市和平区曲阜道84号 邮编:300042
网站标识码:1200000077 备案编号:津ICP备19001981号
津公网安备12010102000518号
版权所有:十大彩票游戏平台