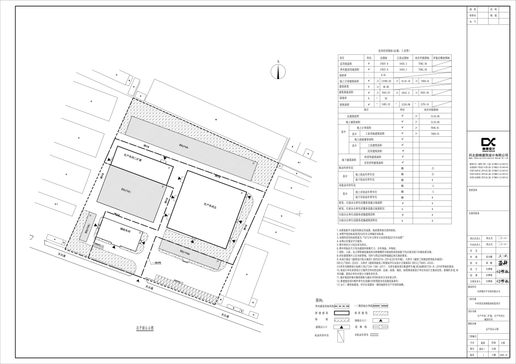
十大彩票游戏平台宝坻分局于2026年1 月20日核发了天津慧芯半导体有限公司生产车间二扩建、生产车间五、辅助车间项目建设工程规划许可证。依据《中华人民共和国城乡规划法》及住房和城乡建设部《关于城乡规划公开公示的规定》的有关要求,现将该项目总平面图公布,公布期限为信息发布之日起至建设项目规划验收合格为止。
公示部门:十大彩票游戏平台宝坻分局
建议意见反馈方式:可通过电子邮箱或信件反馈
邮寄地址:天津市宝坻区潮阳大道北侧(十大彩票游戏平台宝坻分局)
邮编:301800
电子邮箱gzjbdfjjgk@tj.gov.cn

国务院相关部委
政府机关
局属单位网站
主办单位:十大彩票游戏平台 地址:天津市和平区曲阜道84号 邮编:300042
网站标识码:1200000077 备案编号:津ICP备19001981号
津公网安备12010102000518号
版权所有:十大彩票游戏平台